Categories

✨ 5-Minute Guide to IFUN PARK's Design Process, Certifications & Global Experience

As an export-focused manufacturer of amusement equipment, IFUN PARK offers a streamlined design process, internationally certified quality, and rich experience with global projects. This article gives you a quick walkthrough of how we turn ideas into reality — and deliver them worldwide.
Jul 9th,2025 194 Views

✨ 5-Minute Guide to IFUN PARK's Design Process, Certifications & Global Experience


🎨 01| Design Workflow

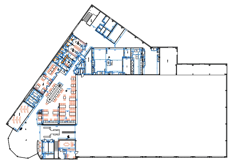
Everything starts with a CAD floor plan. Once the client submits their venue layout, they can select their preferred theme, functional zones, and budget. We then queue the project into our design schedule.


For larger venues, we first provide a 2D layout plan to confirm zoning and traffic flow, followed by 3D rendering to visualize both aesthetics and functionality.


🌟 With an experienced team, we ensure that every design is both beautiful and feasible for real-world implementation.


📋 02|International Certifications


All of our equipment complies with international safety and quality standards, and we hold multiple professional certifications:

  • ISO 9001Annual ISO 9001 re-certification with full documentation and on-site factory audit

  • EN1176EN1176 EU Playground Safety Standard — applies to soft play, slides, etc.

  • ASTM F1918 / F1487ASTM Safety Standards from the U.S. — covers indoor playground equipment


  • CE 认证CE Certification for EU compliance, with on-site inspection required


🌍 03|Global Projects & Export Service

We’ve completed projects in over 100 countries across Asia, Europe, Africa, the Middle East, and South America — including shopping mall play zones, mixed-use sport parks, and neighborhood soft play centers.


Our team supports multi-language communication, provides complete documentation, container loading support, on-site installation guidance, and after-sales service.


🌐 Our global experience helps us understand country-specific standards for materials, safety levels, color preferences, and dimensions.


🤝 Conclusion | Your Trusted Partner in the Playground Industry

As a manufacturer with in-house design, production, and export capabilities, IFUN PARK is committed to high standards, global compatibility, and fully customized service. No matter where your project is or how large your venue, we deliver expert, efficient, and trustworthy solutions.


Contact us today — let’s create your next amazing indoor playground together! 🌍🎡